全國統一服務熱線
危險廢物是指具有危險特性的物料,其具有毒害性、爆炸性、易燃性、腐蝕性等一種或幾種以上的危害特性,國內外對危險廢物的處置相當重視,現行的危險廢物處理方式主要有焚燒及填埋兩種方式,其中回轉窯焚燒處理技術是目前處理危險廢物應用比較廣泛的技術,正成為危險廢物無害化處理的重要途徑。
處理量:10-100噸/天
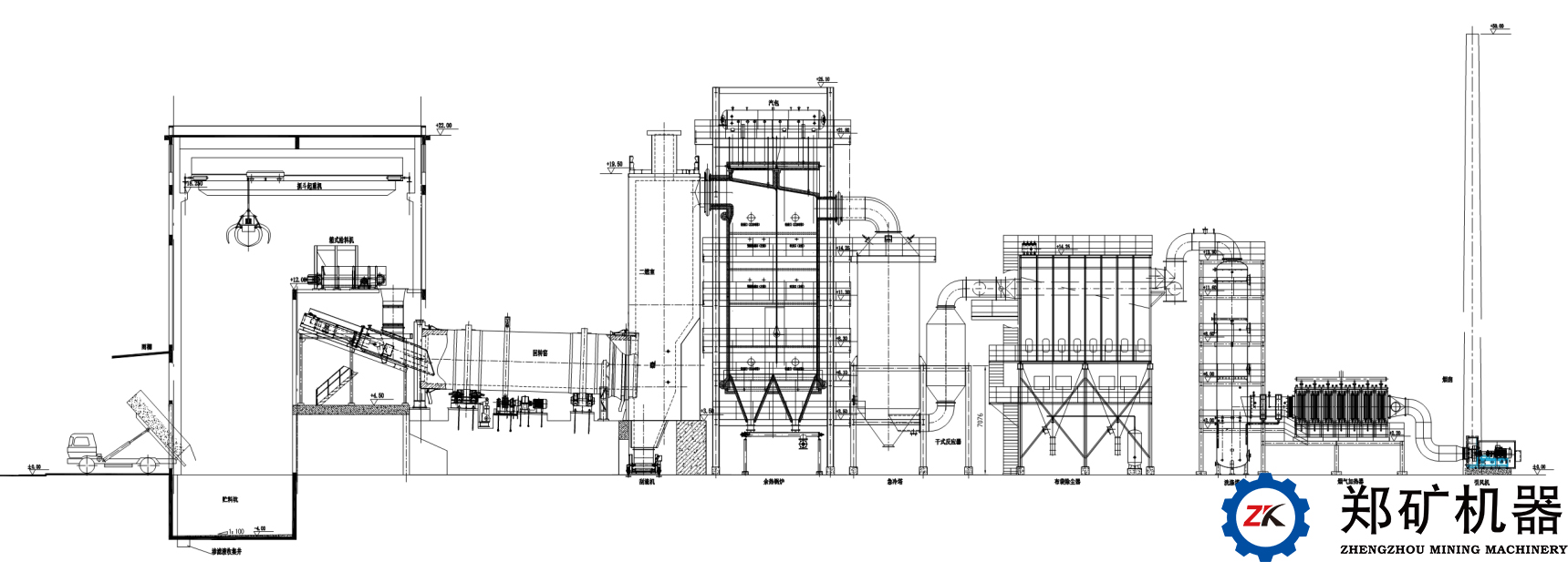
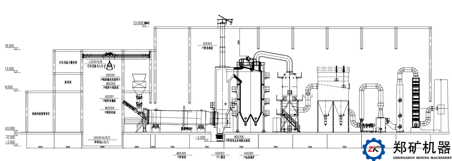
主要設備:預處理及進料系統、回轉窯+二燃室燃燒系統、余熱回收系統、尾氣凈化處理系統
應用范圍:工業綜合危廢、石油、化工、農藥等行業的各種固體廢棄物、廢液和廢氣
1、可以同時處理廢水/廢氣/ 廢液三種廢料。
2、余熱回收,產生效益。
3、應用范圍廣、物料適應性強、處理量大、抗含水率波動性強等優點。
預處理及進料系統---回轉窯+二燃室燃燒系統---余熱回收系統---尾氣凈化處理系統---煙氣排放
焚燒系統:含料斗、回轉窯,二次燃燒室,及助燃和風機等輔助設備。
余熱回收系統:含余熱鍋爐以及鍋爐輔助系統設備。
煙氣凈化系統:冷卻焚燒爐內的煙氣并除去有害的物質,并且達到排放要求后排放。
含急冷塔,除塵器,洗滌塔、煙氣加熱器、活性 炭供給系統、除灰渣系統等。
煙氣排放系統:含引風機、煙囪等。


| 序號 | 規格(m) | 處理量(t/d) | 轉速(rpm) | 支撐數 | 減速機型號 | 電動機型號 | 功率 |
|---|---|---|---|---|---|---|---|
| 1 | ?2.2×9m | 20-30 | 0.2~2 | 2 | 主ZSY315-80 | 主YVF3-200L1-6 | 18.5 |
| 輔ZSY160-80 | 輔YE3-100L2-6 | 3 | |||||
| 2 | ?2.6×10m | 30 | 0.15~1.5 | 2 | 主ZSY355-71 | 主YVF3-225M-6 | 30 |
| 輔ZSY160-40 | 輔YE3-112M-4 | 4 | |||||
| 3 | ?2.5×13m | 35 | 0.2~2 | 2 | 主ZSY355-63 | 主YVF3-280S-6 | 45 |
| 輔ZSY160-40 | 輔YE3-112M-4 | 4 | |||||
| 4 | ?3.0×11m | 40 | 0.2~2 | 2 | 主ZSY355-56 | 主YVF3-280S-6 | 45 |
| 輔ZSY160-40 | 輔YE3-112M-4 | 4 | |||||
| 5 | ?3.2×14m | 50 | 0.2~2 | 2 | 主ZSY400-56 | 主YVF3-280M-6 | 55 |
| 輔ZSY160-40 | 輔YE3-132S-4 | 5.5 | |||||
| 6 | ?3.3×15m | 60 | 0.2~2 | 2 | 主ZSY400-56 | 主YVF3-280M-6 | 55 |
| 輔ZSY160-40 | 輔YE3-132S-4 | 5.5 | |||||
| 7 | ?3.5×16m | 60 | 0.2~2 | 2 | 主ZSY400-50 | 主YVF3-280M-6 | 55 |
| 輔ZSY160-40 | 輔YE3-132S-4 | 5.5 | |||||
| 8 | ?3.8×16m | 50-70 | 0.1-1.1 | 2 | 主ZFY500-100 | 主YVF3-280M-6 | 55 |
| 輔ZSY160-25 | 輔YE3-132S-4 | 5.5 | |||||
| 9 | ?4.0×14m | 80 | 0.1-1.1 | 2 | 主ZFY500-112 | 主YVF3-280M-6 | 55 |
| 輔ZSY160-25 | 輔YE3-132S-4 | 5.5 | |||||
| 10 | ?4.2×16m | 100 | 0.1-1.0 | 2 | 主ZFY500-112 | 主YVF3-280M-6 | 55 |
| 輔ZSY160-25 | 輔YE3-132S-4 | 5.5 | |||||
| 11 | ?4.5×16m | 100 | 0.05-0.5 | 2 | 主ZFY630-200 | 主YVF3-280M-6 | 55 |
| 輔ZLY140-20 | 輔YE3-132S-4 | 5.5 |
歷經多年的發展,由原來單一的機械設備生產企業,逐步 發展成為集科研、設計、制造、安裝、調試、保障運行于 一體的擁有全過程技術的高新技術企業,凈資產達2億多 元,具備環保、建材、礦山及冶金工藝技術及設備整套系 統研發生產能力的綜合公司。
工業園區:河南省滎陽市喬樓蔡砦工業區
鄭州辦公區:鄭州市西三環279號國家大學科技園東區13號樓15樓


